NBA: Sacramento Kings new arena’s formal unveiling of drawings
Mayor Kevin Johnson formally unveils drawings of new downtown arena
By Dale Kasler
The Sacramento Bee
Formally unveiling drawings of the new Sacramento Kings arena, Mayor Kevin Johnson said he’s confident a measure challenging the city’s $258 million subsidy for the project will be kept off the ballot.
In a speech to about 800 community leaders, the mayor defended the city’s subsidy and said it “will leverage an estimated $1 billion in private investment” in the downtown area. Besides building a $448 million arena, Kings executives say they will build another 1.5 million square feet of mixed-use development adjacent to the arena. The arena would occupy a portion of Downtown Plaza, which the team purchased last week.
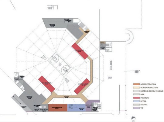
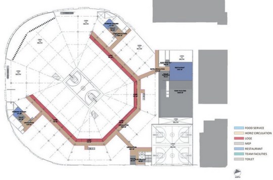
Johnson presented the arena drawings on a giant screen and declared, “It’s big, it’s bold, it’s audacious … an iconic space.”
The City Council is scheduled to finalize a development agreement with the Kings this spring, but STOP has submitted petitions demanding a public vote in June on sports facilities subsidies. City Clerk Shirley Concolino tossed out the petitions, saying the wording was legally flawed. Subsidy opponents have indicated they will sue the city to overturn her decision.
“We’re prepared for it,” the mayor said.
STOP’s lawyer, Brad Hertz, couldn’t be reached for comment Tuesday but has previously said the flaws in the petitions were minor and the taxpayers’ group would have a strong case in court.
________
Video: Sacramento Kings ESC renderings
________
Existing site view from 7th Street
Existing site view from L Street
Future arena site view from 7th Street
Why agribusinessman is bankrolling fight against Sacramento arena subsidy
By Dale Kasler and Ryan Lillis
The Sacramento Bee
Chris Rufer didn’t set out to become the main money man in the most divisive political campaign Sacramento has seen in years. It’s just that, as a registered Libertarian, he says he passionately believes the public shouldn’t spend a dime to help pay for the construction of a new Kings arena.
With little fanfare, Rufer, a wealthy 64-year-old agribusinessman, has contributed more than $93,000 to the political and legal campaign against the city’s proposed $258 million subsidy for the downtown arena. As of Dec. 31, only one person had given more: Chris Hansen, the hedge-fund manager who secretly donated $100,000 while trying unsuccessfully last year to move the Kings to Seattle.
Rufer, founder and owner of a successful Woodland tomato processor called The Morning Star Co., said it comes down to personal philosophy.
“I’m against subsidy, period,” said Rufer. “It’s simply a moral argument. … If it was a subsidy for a fish pond, I’d be against it.”
His contributions make him one of the largest donors to a Sacramento political campaign in recent memory, but the arena fight is merely the latest political cause to grab his attention. Over the past two decades, he and his wife, Melodie, have contributed more than $1 million to Libertarian and Republican candidates across the country, as well as conservative political action committees and ballot initiatives. The couple live on Garden Highway just outside Sacramento city limits.
Rufer’s donations highlight the strange-bedfellows quality of the arena subsidy issue, which has united conservatives and liberals in a fight against the city’s proposed contribution. The main anti-subsidy group, Sacramento Taxpayers Opposed to Pork, was co-founded by two Democrats, Julian Camacho and Jim Cathcart.
The head of the political action committee launched by Mayor Kevin Johnson and funded by the Kings describes Rufer as “another outsider” trying to torpedo an arena project that he says will create thousands of jobs and cement the Kings’ long-term future in Sacramento.
“Rufer’s funding of STOP is supporting STOP’s effort to steal 4,000 jobs, steal a once-in-a-generation opportunity to transform downtown and makes him an accomplice in Seattle’s attempt to steal the Kings,” said Joshua Wood, executive director of The4000, the pro-arena PAC trying to keep the subsidy question off the ballot.
Rufer’s contribution to the anti-arena campaign is by no means his largest political expenditure.
In 2012, he gave $490,000 to a Utah PAC that supported the Libertarian Party’s presidential candidate, Gary Johnson. He has given thousands of dollars to conservative icons including Sen. Ted Cruz of Texas, former GOP presidential candidate Ron Paul and Paul’s son, Sen. Rand Paul. In 2010, he gave $34,000 to an unsuccessful ballot initiative that would have slashed sales-tax rates in Massachusetts. And in the late 1990s, he bankrolled a nationwide advocacy group, led by a former computer salesman from Fresno, that pushed the idea of ending all government funding for schools.
See the complete article
http://www.sacbee.com/2014/02/09/6140539/why-agribusinessman-is-bankrolling.html





















February 10, 2014
Athletics